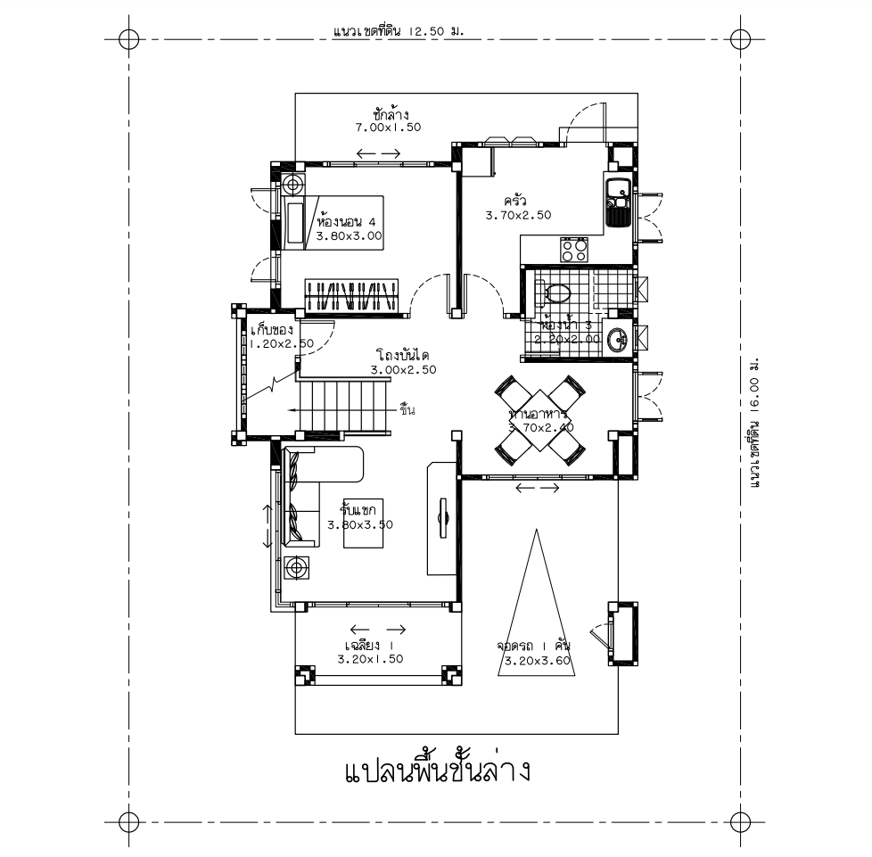
B-245 ปริณดา
พื้นที่ใช้สอย : 160 ตร.ม.
พื้นที่ที่ดิน : 50 ตารางวา
 4 ห้องนอน
							4 ห้องนอน
						 3 ห้องน้ำ
							3 ห้องน้ำ
						 1 ที่จอดรถ
							1 ที่จอดรถ
						฿
3,825,000.00รายละเอียด
รหัสสินค้า : B-245
ประเภท : เสนอขาย
ห้องนอน : 4 ห้อง
ห้องน้ำ : 3 ห้อง
เนื้อที่เป็นตารางวา : 50 ตารางวา
ที่จอดรถ : 1 คัน
																				Attached file :  
										
																				
																																	
													 รายการวัสดุ
													รายการวัสดุ
												
											
																																								





 
												 
 
													 
														 
														 
												 
											 
												 
											
 
					